Dimensionamento tubazioni impianto idrico - progetto diametri
Guida sul progetto di dimensionamento dell'impianto idrico (diametri e tabelle portata adduzione sanitario, scarico e smaltimento acque meteoriche).
Impianto di adduzione dell’acqua (rete di distribuzione)
Per la determinazione delle portate massime contemporanee, necessarie per il dimensionamento delle reti di distribuzione acqua fredda e calda, potresti utilizzare il metodo di calcolo delle Unità di carico (UC) relativamente a utenze degli edifici adibiti ad abitazioni, raccomandato dall’Ente Nazionale Italiano di Unificazione delle Norme UNI 9182. Partiamo dai:
Dati di progetto
-
-
- Utenza: abitazione privata
- Locali interessati: cucina, bagno A, bagno B + antibagno
- Cucina: 1 lavello, 1 lavapiatti;
- Bagno A: 1 lavabo, 1 vaso a cassetta
- Bagno B: 2 lavabi, 1 bidet, 1 vasca, 1 vaso a cassetta, 1 lavabiancheria.
-
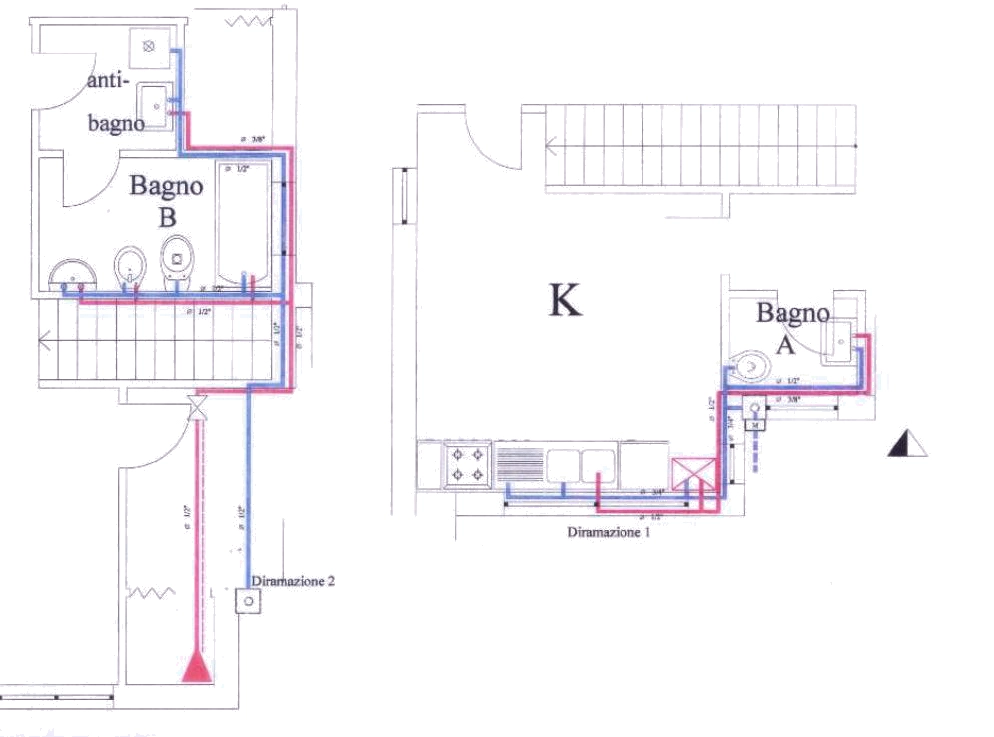
L’acqua, proveniente dalla centrale idrica, viene immessa in una colonna da cui partono due diramazioni che servono i seguenti servizi:
-
-
- diramazione 1: cucina, bagno A
- diramazione 2: bagno B + antibagno
-


Ogni apparecchio è caratterizzata dalle UC unità di carico per utente di abitazioni private (corrispondenti a una determinata portata).
Secondo la norma:
|
Apparecchi |
Acqua fredda |
Acqua calda |
Tot. acqua calda + fredda |
|
|
Lavabo |
0,75 UC |
0,75 UC |
1 UC |
|
|
Bidet |
0,75 UC |
0,75 UC |
1 UC |
|
|
Vaso a cassetta |
3 UC |
--- |
3 UC |
|
|
Vasca |
1,5 UC |
1,50 UC |
2 UC |
|
|
Lavabiancheria |
2 UC |
--- |
2 UC |
|
|
Lavello di cucina |
1,5 UC |
1,50 UC |
2 UC |
|
|
Lavapiatti |
2 UC |
--- |
2 UC |
Ora vediamo per ogni tratto di tubazione quante UC dovrà gestire:
|
Bagno A |
Unità di carico UC |
|||
|
Apparecchi |
Acqua fredda |
Acqua calda |
Acqua calda+ fredda |
|
|
Lavabo |
0,75 |
0,75 |
1 |
|
|
Vaso con cassetta |
3,00 |
--- |
3,00 |
|
|
Totale |
3,75 UC |
0,75 UC |
4 UC |
|
|
Cucina |
Unità di carico UC |
|||
|
Apparecchi |
Acqua fredda |
Acqua calda |
Acqua calda + fredda |
|
|
Lavello |
1,50 |
1,50 |
2,00 |
|
|
Lavapiatti |
2,00 |
--- |
2,00 |
|
|
Totale |
3,50 UC |
1,50 UC |
4 UC |
|
|
Bagno B + anti |
Unità di carico UC |
|||
|
Apparecchi |
Acqua fredda |
Acqua calda |
Acqua calda + fredda |
|
|
Vasca |
1,50 |
1,50 |
2,00 |
|
|
Lavabo1 |
0,75 |
0,75 |
1 |
|
|
Lavabo2 |
0,75 |
0,75 |
1 |
|
|
Bidet |
0,75 |
0,75 |
1 |
|
|
Lavabiancheria |
2,00 |
---- |
2,00 |
|
|
Vaso con cassetta |
3,00 |
---- |
3,00 |
|
|
Totale |
8,75 UC |
3,75 UC |
10 UC |
|
Portata massima contemporanea
Adesso dobbiamo trasformare le UC in portate. Le portate dei singoli apparecchi sono:
|
Apparecchi |
Portata in l/s |
|
Lavabo |
0,10 |
|
Bidet |
0,10 |
|
Vaso a cassetta |
0,10 |
|
Vasca |
0,20 |
|
Doccia |
0,15 |
|
Lavabiancheria |
0,10 |
|
Lavello di cucina |
0,20 |
|
Lavapiatti |
0,10 |
Ovviamente, non tutti gli apparecchi verranno utilizzati contemporaneamente. Per determinare il valore di progetto della portata totale ci vengono in aituo le curve o tabelle di contemporaneità.
Dalla tabella della portata massima contemporanea (per abitazioni private in funzione delle unità di carico) possiamo ricavare in base alle unità di carico la portata (l/s) di ogni tratto considerato la portata di progetto:
|
Unità di carico UC |
Portata in l/s |
|
6 |
0,30 |
|
8 |
0,40 |
|
10 |
0,50 |
|
12 |
0,60 |
|
14 |
0,68 |
|
16 |
0,78 |
|
18 |
0,85 |
|
20 |
0,93 |
|
25 |
1,13 |
|
30 |
1,30 |
|
35 |
1,46 |
Sommando le unità di carico del bagno A, bagno B + antibagno + cucina ne deriva l'Unità di carico totali = 4 + 4 + 10 = 18 UC. Dalla tabella della portata massima contemporanea, 18 U.C. corrispondono ad una portata di circa 0,85 l/s.
Dimensionamento colonna
In base alla portata trovata per ogni tratto di tubazione possiamo determinare il diametro delle tubature dal diagramma usando, tra i metodi proposti, quello a velocità costante dove la velocità v dell’acqua deve essere minore di 2 m/s.
La scelta è ricaduta su 1,5 m/s.
Vediamo il diametro della colonna di adduzione. Sommando le unità di carico del bagno A, bagno B + antibagno + cucina ne deriva l'Unità di carico totali = 4 + 4 + 10 = 18 UC
Dalla tabella della portata massima contemporanea, 18 U.C. corrispondono ad una portata di circa 0,85 l/s.
Per il calcolo rapido del diametro dei tubi in funzione della portata totale si possono usare anche i seguenti diagrammi (Curva 1: vasi con cassetta, Curva 2: vasi con passo rapido o flussometro).
Con una velocità vmax = 1,5 m/s, alla colonna è stato perciò assegnato un diametro di 1” (27,70 mm).
Dimensionamento della diramazione 1 (cucina e bagno A)
Tubi acqua fredda
|
Bagno A |
Unità di carico UC |
|
Apparecchi |
Acqua fredda |
|
Lavabo |
0,75 UC |
|
Vaso con cassetta |
3,00 UC |
|
Totale |
3,75 UC |
Tubi acqua fredda
|
Cucina |
Unità di carico UC |
|
Apparecchi |
Acqua fredda |
|
Lavello |
1,50 UC |
|
Lavastoviglie |
2,00 UC |
|
Totale |
3,50 UC |
Unità di carico tot. = 7,25 UC
7,25 UC corrispondono ad una portata di 0,36 l/s. Con una velocità vmax = 1,5 m/s, il diametro delle tubazioni di diramazione per l’acqua fredda è di 3/4’’ (21,95 mm).
Tubi acqua calda
|
Cucina |
Unità di carico UC |
|
Apparecchi |
Acqua calda |
|
Lavello |
1,50 UC |
|
Lavastoviglie |
--- |
|
Totale |
1,50 UC |
|
Bagno A |
Unità di carico UC |
|
Apparecchi |
Acqua calda |
|
Lavabo |
0,75 |
|
Vaso con cassetta |
--- |
|
Totale |
0,75 UC |
Unità di carico tot. = 2,25 UC
2,25 UC corrispondono ad una portata di 0,30 l/s. Con una velocità vmax = 1,5 m/s, il diametro delle tubazioni di diramazione per l’acqua calda è 1/2’’ (16,45 mm).
Dimensionamento della diramazione 2 (bagno b + antibagno)
Tubi acqua fredda
|
Bagno B |
Unità di carico UC |
|
Apparecchi |
Acqua fredda |
|
Vasca |
1,50 UC |
|
Lavabo 1 |
0,75 UC |
|
Lavabo 2 |
0,75 UC |
|
Bidet |
0,75 UC |
|
Vaso con cassetta |
3,00 UC |
|
Lavabiancheria |
2,00 UC |
|
Totale |
8,75 UC |
Unità di carico tot. = 8,75 UC
8,75 UC corrispondono ad una portata di 0,40 l/s. Con una velocità vmax = 1,5 m/s, il diametro delle tubazioni di diramazione per l’acqua fredda è 3/4’’ (21,95 mm).
Tubi acqua calda
|
Bagno B |
Unità di carico UC |
|
Apparecchi |
Acqua calda |
|
Vasca |
1,50 |
|
Lavabo |
0,75 |
|
Bidet |
0,75 |
|
Vaso con cassetta |
--- |
|
Totale |
3,00 U.C. |
Unità di carico = 3,00
3 UC corrispondono ad una portata di 0,30 l/s. Sempre con una velocità vmax = 1,5 m/s il diametro delle tubazioni di diramazione per acqua calda è 1/2’’ (12,25 mm)
Tubazioni di ricircolo
In presenza di un impianto per la produzione di acqua calda centralizzato sono necessarie delle tubazioni di ricircolo per evitare che l’acqua si raffreddi nelle tubazioni prima di essere erogata e per impedire fenomeni di stagnazione. Adottando il secondo metodo previsto dalle norme UNI, possiamo assegnare alle colonne montanti di ricircolo le portate in relazione alle colonne di mandata, con un diametro di ½”.
Dimensionamento del sistema di scarico

Per il dimensionamento delle diramazioni di scarico, delle colonne verticali e della rete di ventilazione, è stato utilizzato il metodo delle unità di scarico (US) raccomandato dall’Ente Nazionale Italiano di Unificazione delle Norme UNI9183 riguardanti i criteri di progettazione di sistemi di scarico delle acque usate, che devono essere indipendenti da quelli di smaltimento delle acque meteoriche.
Il sistema di scarico è composto da diramazioni di scarico, colonne di scarico, collettori di scarico, colonne di ventilazione primaria, diramazioni di ventilazione secondaria.
Diramazioni di scarico
Per trovare il diametro delle diramazioni di scarico principali è necessario calcolare l’unità di scarico totale gravante su ogni diramazione e fare riferimento alla tabella che relaziona le US con il diametro in mm.
|
Apparecchi |
Unità di scarico |
|
Lavabo |
1US |
|
Bidet |
2US |
|
Vaso a cassetta |
4US |
|
Vasca |
2US |
|
Doccia |
2US |
|
Lavabiancheria |
2US |
|
Lavello di cucina |
2US |
|
Lavapiatti |
2US |
|
Piletta di scarico |
1US |
Massimo numero di unità di scarico US in relazione al diametro:
|
Diametro esterno: diramazione (mm) |
Carico totale (US) |
|
|
40 |
3 |
|
|
50 |
6 • |
|
|
65 |
12 •• |
|
|
80 |
20 ••• |
|
|
100 |
160 |
|
|
125 |
360 |
|
|
150 |
620 |
|
|
200 |
1400 |
senza vaso; • senza vasi; ••• con non più di 2 vasi
Dimensionamento diramazioni di scarico
Per trovare il diametro delle diramazioni di scarico principali è necessario trovare l’unità di scarico totale gravante su ogni diramazione e fare riferimento alla tabella che relaziona le US con il diametro in mm.
|
Unità di scarico US |
TOTALE | ||
| BAGNO A | |||
|
Lavabo |
1US |
5 US |
|
|
Vaso a cassetta |
4US |
||
|
CUCINA |
|||
|
Lavello di cucina |
2US |
4 US |
|
|
Lavapiatti |
2US |
||
|
BAGNO B + antibagno |
|||
|
Lavabo |
1US |
12 US | |
|
Bidet |
2US |
||
|
Vaso a cassetta |
4US |
||
|
Vasca |
2US |
||
|
Lavabiancheria |
2US |
||
|
Lavabo |
1US |
||
Pendenza:1%
Per diramazioni a collettore, a questa pendenza, possiamo assumere 80 mm di diametro (quando si hanno non più di due vasi) anche se la tendenza europea è quella di non scendere mai sotto i 100 mm in presenza di vasi.
Dimensionamento colonne di scarico
Per il dimensionamento della colonna è necessario tener conto delle unità di carico totali e dei seguenti assiomi:
-
-
- le colonne devono essere della stessa sezione in tutta la loro lunghezza
- le colonne in cui confluiscono vasi non possono avere un diametro minore di 100 mm;
- in una colonna in cui confluiscono vasi non devono confluire più di tre vasi nello stesso piano attraverso una sola diramazione.
-
| Colonna 1 | |
|
BAGNO A |
Unità di scarico US |
|
Lavabo |
1US |
|
Vaso a cassetta |
4US |
|
CUCINA |
Unità di scarico US |
|
Lavello di cucina |
2US |
|
Lavapiatti |
2US |
|
TOTALE |
9 US |
Sulla colonna discendente si ha un totale di 9 US per le quali sarebbe sufficiente usare un diametro di 65 mm (Ф 65) ma ciò non è consentito per la presenza del vaso. Pertanto è stata utilizzata una tubazione di diametro 100 mm (Ф 100).
| Colonna 2 | |
|
Apparecchi |
Unità di scarico US |
|
Lavabo |
1US |
|
Bidet |
2US |
|
Vaso a cassetta |
4US |
|
Vasca |
2US |
|
Lavabiancheria |
2US |
|
Piletta di scarico |
1US |
| TOTALE | 12US |
Sulla colonna discendente si ha un totale di 12 US per le quali sarebbe sufficiente usare un diametro di 65 mm (Ф 65) ma ciò non è consentito per la presenza del vaso. Pertanto è stata utilizzata, anche qui, una tubazione di diametro 100 mm (Ф 100).
Smaltimento delle acque meteoriche
Nel nostro progetto è necessario prevedere il sistema di smaltimento delle acque meteoriche soprattutto perché in presenza di una copertura piana. Il cortile interno è un’area verde, quindi possiamo trascurarla in quanto autodrenante.
Per la copertura va dimensionato il canale di gronda in base all’altezza di pioggia della nostra zona fornita dall’Annuario statistico meteorologico dell’ISTAT, in funzione della superficie da drenare e della pendenza del canale; vanno inoltre dimensionati i pluviali e i collettori orizzontali collegati alla fognatura pubblica sempre secondo l’altezza di pioggia. Pendenza 1% e h di pioggia 116.
|
S (mq) |
Diametro gronda |
Diametro pluviali e collettori |
|
|
74 |
125 |
65 |
|
|
12,3 |
75 |
50 |
|
|
39,6 |
100 |
50 |
Spero che l'articolo ti sia stato utile, a presto, Vincenzo.