Cabina armadio: dimensioni, composizioni e idee
Cabina armadio: quali sono le dimensioni minime e le possibili composizioni. Vedremo alcune idee.

Nell’immaginario comune, la cabina armadio rappresenta il luogo ideale dove riporre e custodire i propri abiti e accessori. Le cabine armadio o i guardaroba sono dei vani che, se progettati ad hoc, possono assicurare un posto ad ogni oggetto. Rappresentano quindi l’ambiente ideale per tenere tutto in ordine.
Da sempre considerate uno status symbol, un sogno per molte ragazze affascinate dalle splendide cabine armadio dei telefilm americani, attualmente sono alla portata di tutti, grazie all’esistenza di sistemi modulari disponibili anche a prezzi contenuti (vedi Ikea, Mondo convenienza, Leroy Merlin).
Vediamo insieme quali caratteristiche potrebbe avere una cabina armadio e come scegliere quella che meglio si adatta alle tue esigenze.
Indice
Porta di accesso: dimensioni, collocazione e tipologia
Composizione e organizzazione interna
Illuminazione/aerazione: con finestra o senza (pro e contro)
Dimensioni e posizione
Avendo spazio a sufficienza, esistono delle dimensioni ottimali della cabina armadio.
Tuttavia, l’ingombro della cabina dipende notevolmente dalla conformazione della stanza all’interno della quale verrà inserita.
Potresti posizionare tale vano scegliendo tra diverse opzioni:
-
- all’interno di una delle camere esistenti;
- nell’antibagno della camera;
- in un vano a servizio di più camere;
- come zona filtro tra disimpegno e camera;
- in un vano apposito esterno alla camera.
1. Cabina armadio all’interno della camera
Su questa scelta potrebbe influire notevolmente la presenza di una camera di dimensioni opportune.
Infatti, nel realizzare una cabina armadio all’interno della camera esistente, dovrai fare in modo che la camera non si riduca eccessivamente e che la cabina abbia dimensioni tali da poter essere comoda e funzionale.
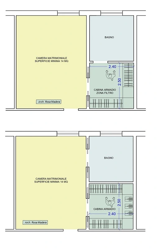
A intervento realizzato, e senza considerare i metri quadrati della nuova cabina, la metratura della camera non dovrà essere inferiore a 9 metri quadri mq nel caso di una camera singola e 14 mq per una camera matrimoniale o doppia. Mantenendo queste dimensioni minime godrai di ambienti funzionali e che rispettano le norme nazionali DM 5/7/75.
Riassumendo, prima di realizzare una cabina armadio dovrai calcolare i metri della stanza, sottrarre i mq minimi per norma (9 oppure 14 mq) e verificare se lo spazio rimanente sarà sufficiente per ospitare la cabina armadio.
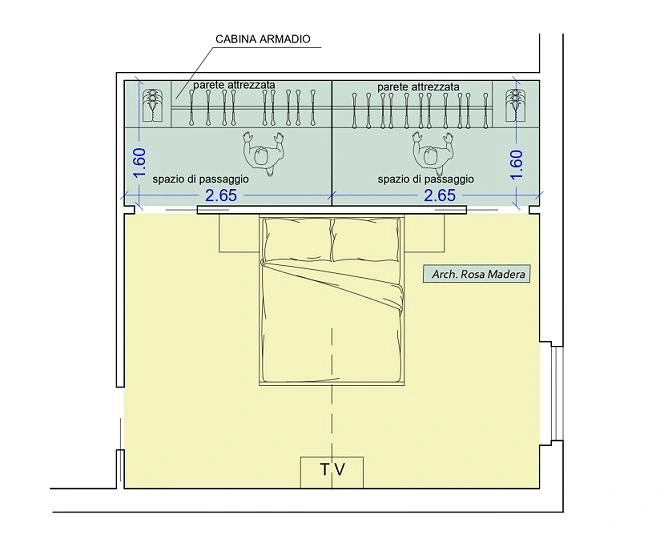
In generale, per progettare una cabina armadio di dimensioni adeguate, si considera una profondità per la parete attrezzata pari a 50/60 cm cui aggiungere ulteriori 60 cm da destinare al passaggio delle persone, apertura cassetti etc. Qualora non avessi a disposizione tali spazi, esistono in commercio moduli di parete attrezzata di profondità inferiore pari a 35 cm.
Quindi, una cabina armadio dovrà avere una profondità di almeno 120 cm. Se non avessi tutto questo spazio potresti ridurre fino a 100 cm. Mentre, la larghezza e l’altezza saranno, in generale, pari a quelle della stanza.
La cabina armadio minima, più piccola possibile (che abbia un senso) potrebbe essere pari a 100 x 200 cm.
Se poi, tu disponessi di uno spazio maggiore potresti rendere la cabina armadio più comoda e utilizzabile anche come spogliatoio, aggiungendo ulteriori elementi di arredo.
Nel progettare la tua cabina armadio fai attenzione alla posizione della finestra e della porta della camera, facendo in modo che la parete tra cabina e camera non intercetti la finestra e che non intralci l’apertura di eventuali altre porte presenti nella camera.

1.1 Su quale parete della camera posizionare la cabina armadio
Qualora avessi intenzione di inserire la cabina in una stanza, la scelta successiva riguarda la posizione.
Premetto che eviterei la parete esterna posta a nord, a meno che la tua casa non sia correttamente coibentata. Questo per evitare che i tuoi vestiti si riempiano di muffa.
Detto ciò, vediamo le diverse possibilità.
-
-
- di fronte al letto;
- dietro la testata del letto;
- a lato del letto;
- in angolo.
-
1.1.1 Di fronte al letto
La disposizione della cabina armadio davanti al letto è una delle soluzioni più utilizzate. Facendo ciò, potresti sfruttare la nuova parete divisoria per installare una tv sospesa.

1.1.2 Dietro la testata del letto
E’ una delle soluzioni meno invasive in quanto, nella maggior parte dei casi, chi opta per questa posizione può evitare di spostare la porta di accesso alla camera. In questo caso, potrebbe risultare utile e armonioso creare un doppio ingresso alla cabina e, se le dimensioni lo consentono, potresti dividere la cabina in due reparti separati. Una porzione per un partner e un'altra per l’altro, così da evitare invasioni di campo.

1.1.3 A lato del letto
Questa scelta potrebbe rivelarsi vincente nel caso in cui la camera si sviluppasse longitudinale (lunga e stretta). Potresti sfruttare la stanza al meglio inserendo una cabina ampia e confortevole che occupi buona parte dell’ambiente.

1.1.4 In angolo
In questo caso, potresti regalare dinamicità all’ambiente e, grazie alla conformazione triangolare della cabina, potresti sfruttare meglio lo spazio ottenendo una maggiore superficie utilizzabile, senza intralciare i percorsi della camera.

2. Nell’antibagno della camera
Qualora tu disponessi di uno spazio abbastanza grande tra la camera ed il bagno dedicato, potresti creare una cabina armadio di passaggio. Tuttavia, se da un lato la presenza della cabina armadio garantisce maggiore privacy durante l'utilizzo del bagno, dall’altro dovresti prestare maggiore attenzione alla chiusura della porta durante la doccia per evitare che il vapore interessi la cabina.
In alternativa, potresti decidere di dedicare un ingresso indipendente al bagno, direttamente dalla camera, rinunciando così a un po’ di privacy, ma aumentando la fruibilità della cabina.

3. Cabine armadio a servizio di più camere
Hai una famiglia numerosa e rumorosa? Potresti creare una comoda cabina armadio che non solo ospiti tutti gli indumenti della famiglia ma che funga anche da come zona filtro tra le camere.

Una variante di questa soluzione consta della combinazione tra le proposte viste in precedenza. La cabina armadio potrebbe essere a servizio di due camere adiacenti e anche del bagno.

4. Elemento di filtro tra zona giorno e zona notte
La cabina armadio potrebbe svolgere anche una seconda funzione andando ad inserirsi come un diaframma tra la zona notte e la zona giorno regalando maggiore privacy agli ambienti notturni poiché li separerebbe sia visivamente che acusticamente.

5. In un vano dedicato, esterno alla camera
Spesso risulta difficoltoso creare dei collegamenti diretti tra cabina e camera. Questo può accadere per diversi motivi:
-
-
-
- la conformazione della casa;
- la posizione dei vani;
- ragioni strutturali: eventuali lavori edili sarebbero considerati troppo invasivi o poco convenienti: ad esempio, potrebbe essere necessario aprire varchi in pareti portanti inserendo delle cerchiature.
-
-
Qualora intendessi inserire la cabina armadio in un vano esistente esterno alla camera, privo di un accesso diretto dalla stessa, senza rinunciare alla comodità, ti suggerirei alcune accortezze che potrebbero renderti la vita più semplice.
Ad esempio, potresti scegliere un vano prossimo alla tua camera e abbastanza ampio da poter essere usato anche come spogliatoio. In questo modo non saresti costretto a girare nudo per casa. L’ideale sarebbe se tale vano fosse vicino anche al bagno.
Il guardaroba esterno alla camera ha il notevole vantaggio di poter essere utilizzato anche dal resto della famiglia senza che questo comporti l’invasione della tua camera e della tua privacy!

Mansarda o soppalco
Spesso, viene utilizzata la mansarda come cabina armadio. In questo caso, presterei particolare attenzione all'eventuale umidità che potrebbe caratterizzare il vano. Sincerati di ciò prima di acquistare scaffali e cassettiere, magari su misura.
Qualora disponessi di una stanza particolarmente alta o a doppia altezza, potresti prevedere un soppalco-cabina armadio. Direi che, per far ciò, avresti bisogno di una stanza alta piu' di 4 metri. Ricorda che le camere, per essere ritenute tali, devono garantire un'altezza di 2,70 metri (DM 75).
Porta di accesso alla cabina: dimensioni, collocazione e tipologia.
Una volta stabilità la conformazione del vano, dovrai stabilire le caratteristiche della porta di accesso alla cabina.
In linea generale, per quanto riguarda la porta, dovrai stabilire:
-
-
- dimensioni;
- collocazione;
-
Le dimensioni della porta dipendono da molti fattori, tra cui lo spazio a disposizione per poterla inserire. Ad esempio, inserendo una porta troppo ampia rischieresti di rendere difficilmente arredabile sia la cabina che la camera. Un altro fattore che incide sulle dimensioni della porta potrebbe essere la necessità di far entrare luce naturale all’interno della cabina. Spesso, infatti, le cabine armadio non sono dotate di finestre. In ogni caso, ti consiglio una porta di accesso che sia larga 80 cm ed alta 210 cm, in maniera tale di utilizzarla agevolmente.
Per quanto riguarda la collocazione della porta dovrai fare attenzione che, durante l’apertura, l’anta non intercetti mobili, altre porte, finestre o che sia di intralcio ai percorsi.
Per non sbagliare, ti consiglio di realizzare un disegno in pianta della camera completo dei mobili e delle curve di apertura di porte e finestre. In questo modo potresti renderti conto se, aprendo una porta, andresti a sbattere contro mobili o altro.
Inoltre, ti consiglio di non posizionare la porta davanti al letto. Infatti, il fronte letto potrebbe essere la posizione ideale per installare la TV sospesa.

Per la scelta della tipologia di porta hai a disposizione:
-
-
- porte a battente: sono le più diffuse in quanto più economiche rispetto alle altre due tipologie. Qualora scegliessi una porta a battente dovresti far attenzione alla posizione, evitando intralci con gli altri elementi presenti;
- porte a scorrere a scomparsa: rappresenta l’elemento di minore impatto visivo e funzionale poiché non prevede ante che si spostano all’interno degli ambienti. Infatti, l’anta scorre all’interno dello spessore del muro. Risulta comoda e funzionale soprattutto negli spazi ridotti. La porta a scorrere a scomparsa è costituita dalla porta stessa e da un controtelaio di dimensioni leggermente superiori a quelle della porta. Quindi, nel posizionarla dovrai tener conto dello spazio occupato dalla porta e da quello occupato dal controtelaio che sarà inserito nella parete. Lo spazio ai lati della porta risulta comunque arredabile;
- porte a scorrere esterne: occupano, in quanto a dimensioni, il medesimo spazio di quelle a scomparsa. La differenza principale con le porte a scomparsa è che, una volta aperta, l’anta rimane a vista su uno dei due lati della parete. Quindi, non risulterà arredabile la porzione di parete ove scorre la porta.
-
Per tutte le tipologie di porte citate, potresti optare per l’anta unica o multipla. La scelta dipende dalla dimensione dell’apertura che vorrai realizzare.
Consiglio: se la cabina fosse stretta potresti realizzare una porta di accesso leggermente maggiore. In questo modo, la cabina sarà maggiormente fruibile.
Struttura e materiali
I materiali di cui si compone una cabina variano dalla più tradizionale parete in muratura fino alle più sofisticate schermature realizzate in cristallo. Vediamo nello specifico le diverse tecnologie a tua disposizione e valutiamo i pro e i contro delle diverse proposte.
Tipologie delle strutture per cabine armadio:
-
-
- muratura;
- cartongesso;
- cristallo;
- tessuto, carta giapponese, lastre metalliche;
-
La cabina armadio in muratura è costituita da una vera e propria parete divisoria che andrà a definire un ambiente completamente nuovo e modificabile solo tramite opere murarie.
La medesima osservazione resta valida per una cabina in cartongesso. A differenza della precedente, la cabina in cartongesso è caratterizzata da un peso della struttura inferiore e da un minor costo. Il risultato estetico sarà il medesimo e potrai scegliere la finitura e il colore che preferisci. In entrambi i casi, lo spessore della muratura si aggira attorno ai 10/12 cm.
Invece, per quanto riguarda la cabina armadio realizzata in cristallo, lo spessore della parete sarà di alcuni millimetri. Questo aspetto potrebbe risultare determinante nel caso in cui l’ambiente fosse di dimensioni contenute. I costi sono superiori rispetto a quelli di una parete in muratura o in cartongesso. Di contro, le pareti in cristallo regalano un aspetto elegante all’ambiente e sono realizzabili in diverse finiture: opache o trasparenti, riflettenti o colorate. Scegliendo le vetrate trasparenti dovrai prestare maggiore attenzione all’ordine!
Potresti virare anche sul divisorio in tessuto. Tuttavia non si tratta di una vera e propria cabina armadio ma di un accorto escamotage per realizzare in maniera veloce ed economica una separazione visiva tra camera e guardaroba. Questa soluzione non prevede la realizzazione di pareti vere e proprie. Vengono impiegati dei pannelli in tessuto decorato, semplicemente fissati a soffitto e a pavimento, che fungono da filtro tra camera e guardaroba. Nella maggior parte dei casi trovano collocazione dietro la testata del letto e fungono da parete di fondo, lasciando ai due lati del letto dei passaggi per arrivare alla zona retrostante dove è organizzato il guardaroba. Potresti personalizzare le tele in base ai tuoi gusti e creare un effetto scenico usando la giusta illuminazione. In alternativa alle tele acquistabili in commercio, potresti realizzare i pannelli in prima persona, donando un forte carattere alla tua camera senza spendere cifre esagerate. In alternativa ai pannelli in tessuto potresti usare dei pannelli in carta giapponese oppure utilizzare delle lastre in metallo, anche traforato e retroilluminato.
Infine, abbiamo le cabine armadio in legno. Queste sono in grado di trasmettere una forte sensazione di calore. Anche se, in prima battuta, potrebbero essere associate ad ambienti montani, in realtà, grazie alle molte finiture e trattamenti, si adattano bene anche agli ambienti più contemporanei e urbani. Il fascino del legno e la sua versatilità contribuiscono a valorizzare l’ambiente in cui si inseriscono.
Come vedi le possibilità sono diverse e in grado soddisfare qualsiasi esigenza e budget.
Composizione e organizzazione interna - con ante o senza ante
La composizione interna di una cabina armadio varia notevolmente in base alla sua dimensione ed alla sua conformazione.
Primo elemento da scegliere è se avere una cabina armadio i cui elementi risultino completamente aperti ossia privi di ante o se si preferisca avere delle armadiature chiuse.
Su questo aspetto influirà la profondità della cabina.
Infatti, devi considerare che, montando delle ante a battente agli armadi, le ante devono potersi aprire davanti a te. Quindi ti servirà una profondità pari a 60 cm per l’armadio, 45 cm circa per l’apertura dell’anta a battente e 60 cm circa per il passaggio di una persona. Quindi, servirebbe una cabina di profondità pari a 165 cm circa.
Se non avessi questa profondità, ma volessi comunque delle ante agli armadi, potresti sfruttare delle ante a scorrere che, in generale, incidono di una decina di cm sulla profondità dell’armadio.
Quali elementi valutare nella scelta di mettere le ante alle armadiature.
Uno dei principali timori di coloro che desiderano una cabina armadio è la polvere che potrebbe entrare nel vano.
Nel caso di cabine chiuse da vere e proprie pareti, dovrebbe entrare poca polvere, e quindi, non dovrebbe essere necessarie le ante.
Mentre, nelle cabine costituite soltanto da pannellature ed aperte ai lati, consiglio le ante poiché la polvere circola liberamente e potrebbe depositarsi su abiti e accessori.
Altro elemento da valutare è la presenza di luce naturale e diretta, in questo caso meglio proteggere gli abiti con delle ante.
Potresti realizzare una cabina armadio la cui parete attrezzata sia disposta in maniera lineare, su un lato o più lati, oppure angolare. È possibile occupare anche tutte le pareti della cabina oppure scegliere di lasciare una parete vuota per potervi inserire uno specchio.
Gli elementi che potrebbero essere inseriti all’interno di una cabina armadio sono: bastoni appendiabiti, cassettiere, cesti estraibili e non, ripiani, mensole o cremagliere, porta pantaloni estraibile, sistemi componibili. Adesso sogniamo: vetrine, pouff e poltrone, specchi, scarpiere, piani di appoggio, spazi per bijoux, portacravatte, isola al centro con cassetti e ripiano di appoggio.
Organizzazione
L’ideale sarebbe organizzare l'ambiente assegnando una porzione di cabina ciascuno e disponendo i reparti in considerazione del tipo di indumenti che vi saranno posizionati. Risulterà utile dedicare degli spazi appositamente predisposti per ospitare: capispalla; abiti lunghi; indumenti corti appesi (camicie, pantaloni, gonne); biancheria piegata; cappelli, sciarpe-foulard, guanti; borse; cravatte; scarpe; gioielli; fuori stagione (in una cabina grande questo spazio non sarà previsto perché ogni cosa avrà una sua collocazione durante tutto l’anno).
Ciò che conta è dimensionare gli elementi pensando già alla funzione che dovranno svolgere e a quanto spazio davvero sarà necessario per ciascuna tipologia di indumento o accessorio.
Una cabina armadio ben progettata ti permetterà di vedere tutto in un solo colpo d’occhio ed avere ciò che ti serve a portata di mano. Con un notevole risparmio di tempo nel rispondere alla fatidica domanda…oggi cosa metto?
Illuminazione/aerazione: con finestra o senza (pro e contro)
Raramente si vedono cabine armadio con finestre. Su questa scelta influiscono diversi fattori tra cui, la riduzione dello spazio arredabile in corrispondenza di un’eventuale finestra, la presenza di luce naturale che, se proiettata in maniera diretta, potrebbe scolorire il colore degli indumenti e, infine, la possibilità che dalla finestra entri polvere. Per questi motivi spesso si rinuncia a inserire una finestra nei vani destinati a cabina armadio, soprattutto se si desidera una cabina armadio con elementi a vista e priva di ante di chiusura. Mentre, se tu volessi realizzare una cabina con le armadiature chiuse da ante potresti optare per un vano dotato di finestra.
Vediamo allora come illuminare ed aerare una cabina priva di finestra.
Per illuminare la cabina potresti, per esempio, utilizzare dei faretti orientabili in direzione delle armadiature. Così facendo potresti illuminare al meglio tutti i reparti senza creare zone d’ombra. Sconsiglio un unico punto luce perché, inevitabilmente, resterebbero delle zone in ombra.
Il plus ultra sono i sensori che consentano l’accensione e lo spegnimento della luce in base alla presenza in cabina di una persona. Questo ti consentirebbe un risparmio sulla bolletta della luce poiché capita spesso di chiudere la porta della cabina dimenticando la luce accesa. Se invece tu non fossi una fan di fotocellule e timer potresti pensare di installare l’interruttore della cabina direttamente in camera e dotarlo di luce spia che ti ricorderà di spegnere la luce qualora fosse rimasta accesa. Per quanto riguarda l’aerazione del vano privo di finestra potresti pensare ad un sistema di aerazione meccanizzato e ad un purificatore d’aria.
Inoltre, per aumentare il comfort di questo vano, potresti inserire anche un profumatore naturale per ambienti.
Dove acquistare le cabine armadio?
Spesso, trovare la cabina armadio, o meglio la parete attrezzata, scaffalatura o guardaroba a giorno, non è cosa semplice. La gran parte delle volte occorre affidarsi ad un falegname che realizzi un manufatto su misura.
Per risparmiare, qualora ti accontentassi di non occupare fino all'ultimo centimetro della cabina armadio, potresti valutare le pareti attrezzate modulari proposte ad esempio da Ikea (PAX, BOAXEL, ELVARLI, PLATSA) o Mondo Convenienza.
Sperando che l'articolo ti sia stato utile, ti suggerisco l'articolo sui costi e i permessi necessari per realizzare una cabina armadio.
A presto, Rosa.